Luxury Penthouse Interior Design in North Tel Aviv
In the heart of North Tel Aviv, Refined Darkness transforms the idea of a modern penthouse.
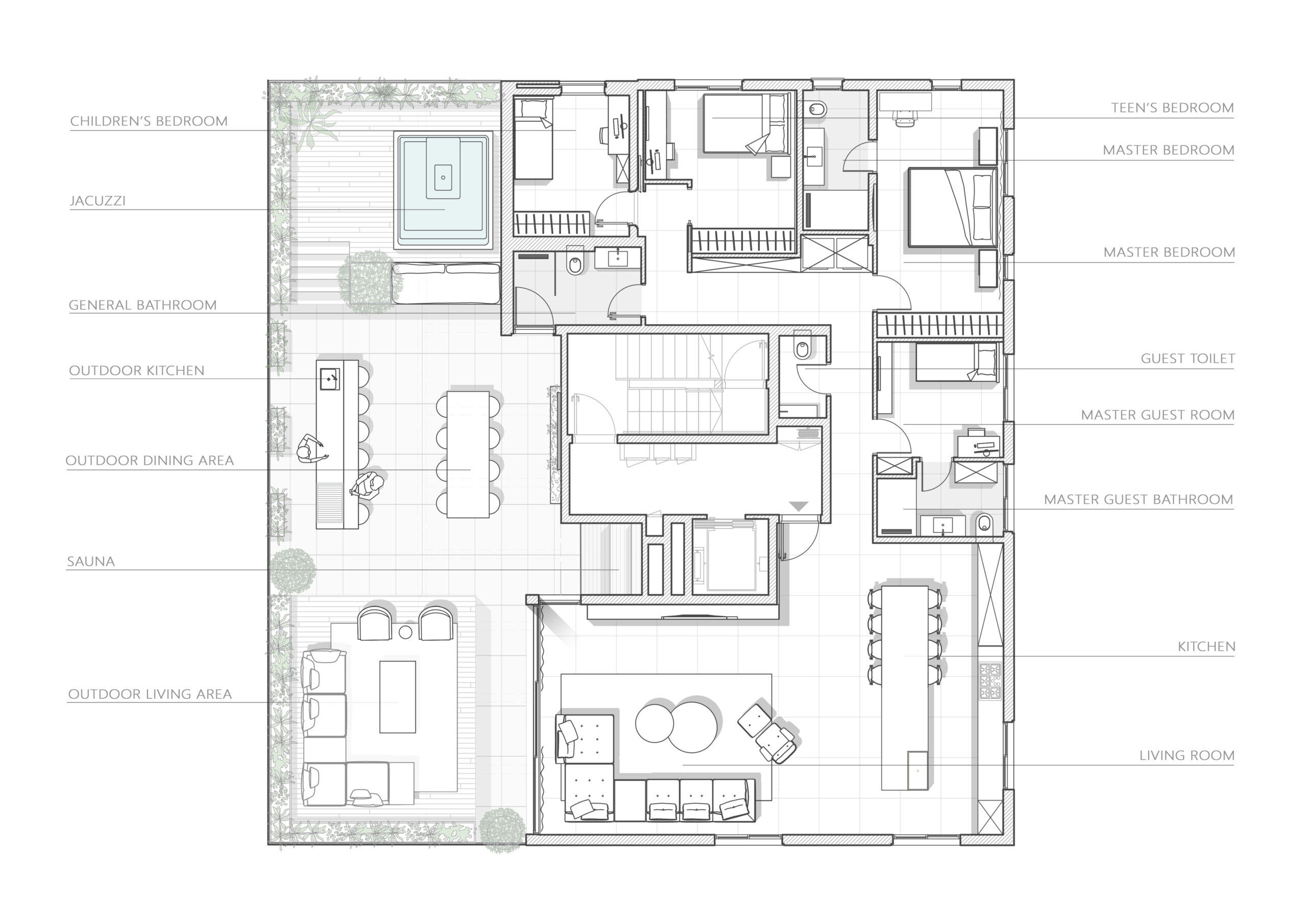
The 150-square-meter residence, paired with a 115-square-meter private terrace,
was carefully redesigned from a basic contractor’s unit into a premium home
through custom finishes and precise, thoughtful detailing.
Living space and atmosphere
The living area blends strong, masculine character with a gentle sense of warmth —
deep brown furniture set on a bold black textured rug,
while a feature wall with a sleek fireplace and a hidden vertical HVAC system anchors the space.
Kitchen design and materiality
The kitchen, dressed in smoky greys, stands out with its rare Taj Mahal stone surfaces.
At its center, a sculptural island with a floating square sink carved directly into the stone
turns everyday functionality into a design statement.
Private areas and bathrooms
The private areas balance the drama with softer tones.
The master suite includes a moody bathroom highlighted with aged brass and copper,
while the guest powder room continues the bold tone with a monolithic stone basin
and full-height wall cladding.
Terrace as an urban retreat
The spacious terrace feels like a private urban resort —
featuring an outdoor kitchen, a travertine dining table, rich greenery,
a jacuzzi accessed via illuminated wooden steps, and a teak dry sauna.
The result is a rare transformation: from a standard apartment into an exceptional penthouse
that embodies dark sophistication and timeless style.













































