Rothschild’s Sky Rhino

Project's description

Rothschild’s Sky Rhino – Penthouse Interior Design in Tel Aviv

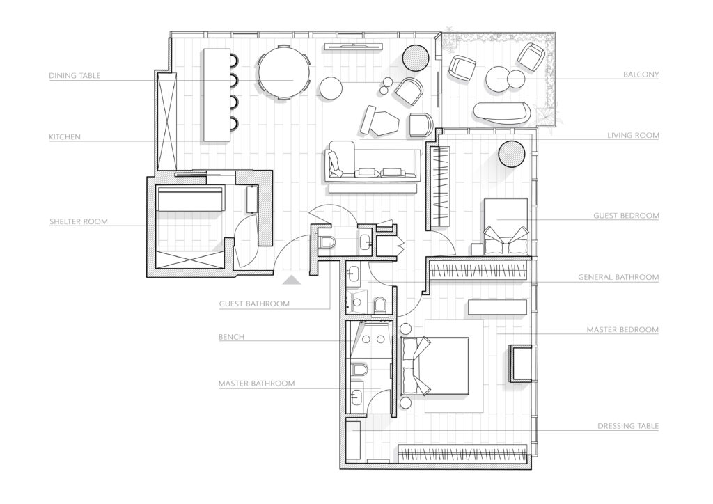
Located on the 30th floor of a tower on Rothschild Boulevard, this four-room apartment spans
approximately 150 square meters, with an additional 13 square meters balcony. The project was
conceived as a precise dialogue between modern, classic, and industrial influences, reflecting
both the architectural language of the tower and the unique character of Tel Aviv.

Design Concept: Modern–Classic with an Industrial Touch

The design is based on a refined balance of concrete, metal, wood, leather, and glass.
Rather than softening the raw materiality of the tower, the concept embraces it, creating an
authentic interior that feels confident, sharp, and urban. The space reflects Tel Aviv itself:
energetic, slightly raw, and dynamic, with a subtle New York attitude.

The View as the Center of Life

At this height, the view is not a backdrop but the heart of the home. Every planning decision,
from the placement of the seating areas to the circulation lines, was made so that the residents
always face the skyline. No seat turns its back to the city, and the view remains uninterrupted
throughout the apartment.

A Television That Preserves the Horizon

One of the main challenges was integrating a television without blocking the skyline.
A custom-designed structure was created, with integrated speakers beneath the screen,
allowing full functionality while preserving the visual continuity of the horizon.
What began as a technical constraint became a refined architectural feature.

The Living Room and Balcony: A Tel Aviv Hosting Experience

The heart of the apartment lies in the seamless connection between the living room and the
balcony. An open flow, shared music, high-quality sound systems, and a smart TV create a
space designed for hosting and everyday life, framed by constant movement, light, and city rhythm.

Materiality: Mass, Texture, and Light

The material palette evolved naturally from the site. Exposed concrete and concrete bricks
uncovered during construction became the foundation of the design. These were balanced with
warm, grounding elements such as wood flooring and substantial furniture, alongside lighter
components like a metal-clad kitchen and metal-and-glass wardrobes that preserve openness.

The kitchen’s metal surfaces change tone throughout the day, responding to natural light and
turning a functional element into a living architectural feature.

The Entrance Library and the Sky Rhino Collection

A custom library defines the entrance zone and creates a corridor toward the private rooms.
To avoid blocking the view, it was designed as a low, elongated passage, allowing both smooth
circulation and uninterrupted sightlines from the living room.

The shelves house the homeowner’s personal collection of rhinoceros sculptures, collected over
many years. This intimate detail inspired the project’s name and adds a quiet personal layer to
the architecture.

The Bathroom: Precision and Balance

A continuous, millimeter-accurate niche runs from the vanity through the shower, providing
storage and a clean visual line. The mirror placement was carefully planned to reflect the body
naturally, balancing comfort, functionality, and visual calm.

Authentically Tel Aviv

Raw materials, vibrant art, and constantly shifting light define the atmosphere of the apartment.
The space responds to the hour of the day and the changing skyline, mirroring the city itself.
It does not imitate any other place. It is confidently and unmistakably Tel Aviv.

CATEGORY

Apartment

LOCATION

Tel-Aviv

TOTAL AREA

150/13

Team

Planning & Lead designer - Tzvia Kazayoff
Assistant Interior Designer –
Daria Utkina
Project photography –
Itay Benit
Contractor – Dudi Dream maker
Kitchen - Bulthaup
Furniture – Ellita Living
Carpets – Tzemer carpets
Curtains and textiles –
Ella Decor
Bathroom utensils and tiles –
Hezibank
Kitchen surfaces and bathrooms –
Hezibank
Lighting – Kimchi
Air conditioning –
Bet Hamatkinim
Home Automation – Master Piece
Audio/Visual suppliers –
Master Piece
Greenery – Gan Bagag
Accessories – Ellita Living
Artwork – Lemon Frame